
Punkthus Karlberga
Plats: Karlberga, Södertälje
Program: Flerbostadshus
År: 2022
Status: Pågående
Storlek: 1400 kvm BTA
Beställare: PJDK invest
Illustration: AF/Katzenwaffe
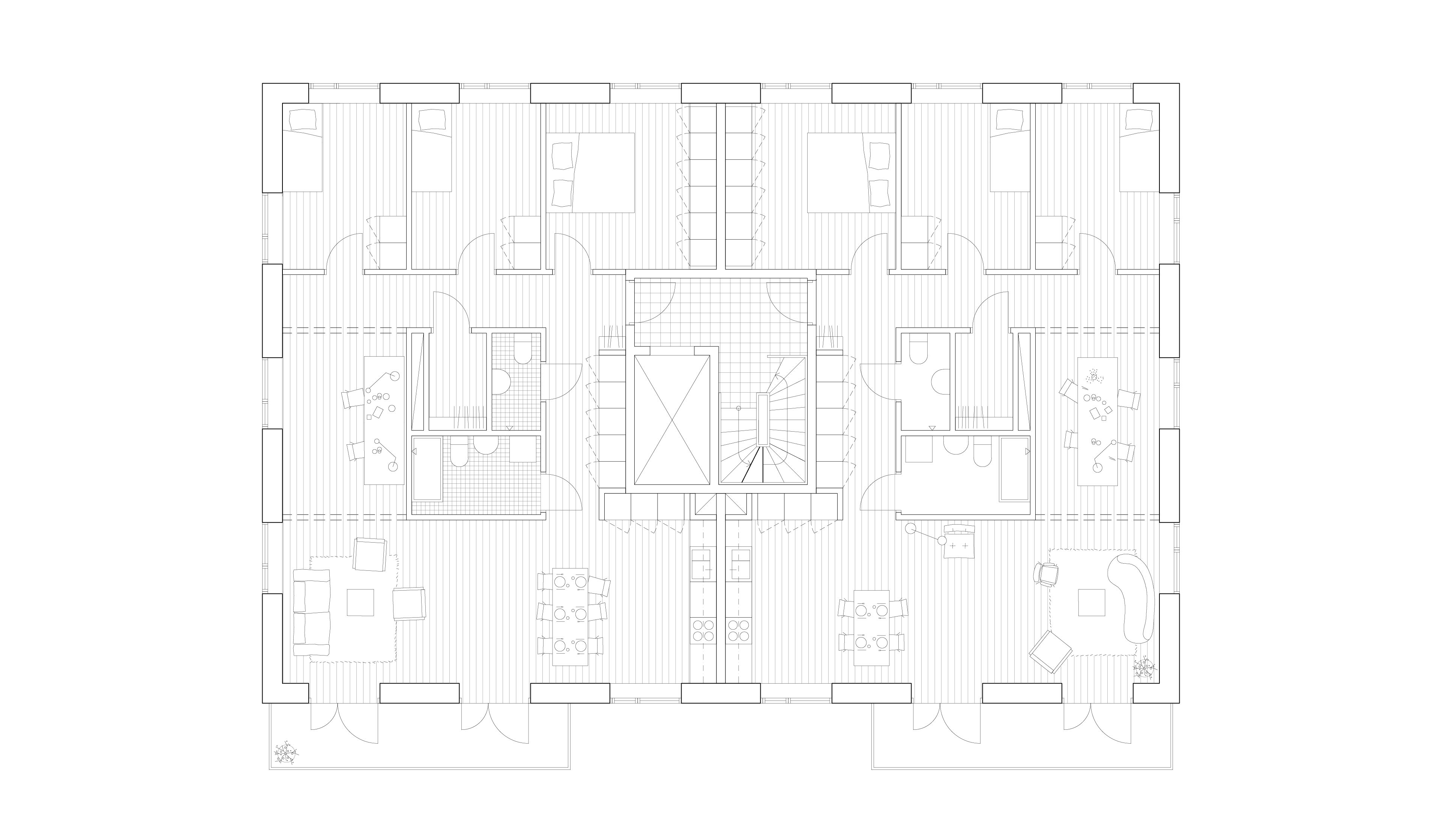
Ett elegant punkthus med generösa bostäder bildar entré till området Karlberga. Flerbostadshuset placeras mellan gatan i norr och den befintliga bebyggelsen
samt vattnet i söder.
Med utsikt i alla väderstreck och långsträckta balkonger erbjuder huset en exklusiv boendemiljö. Den nya byggnaden blir ett samtida tillskott som med sina
klassiska proportioner och symmetriska fönstersättning bidrar till en enhetlig
stadsbild tillsammans med de äldre putsade flerbostadshusen i området.



